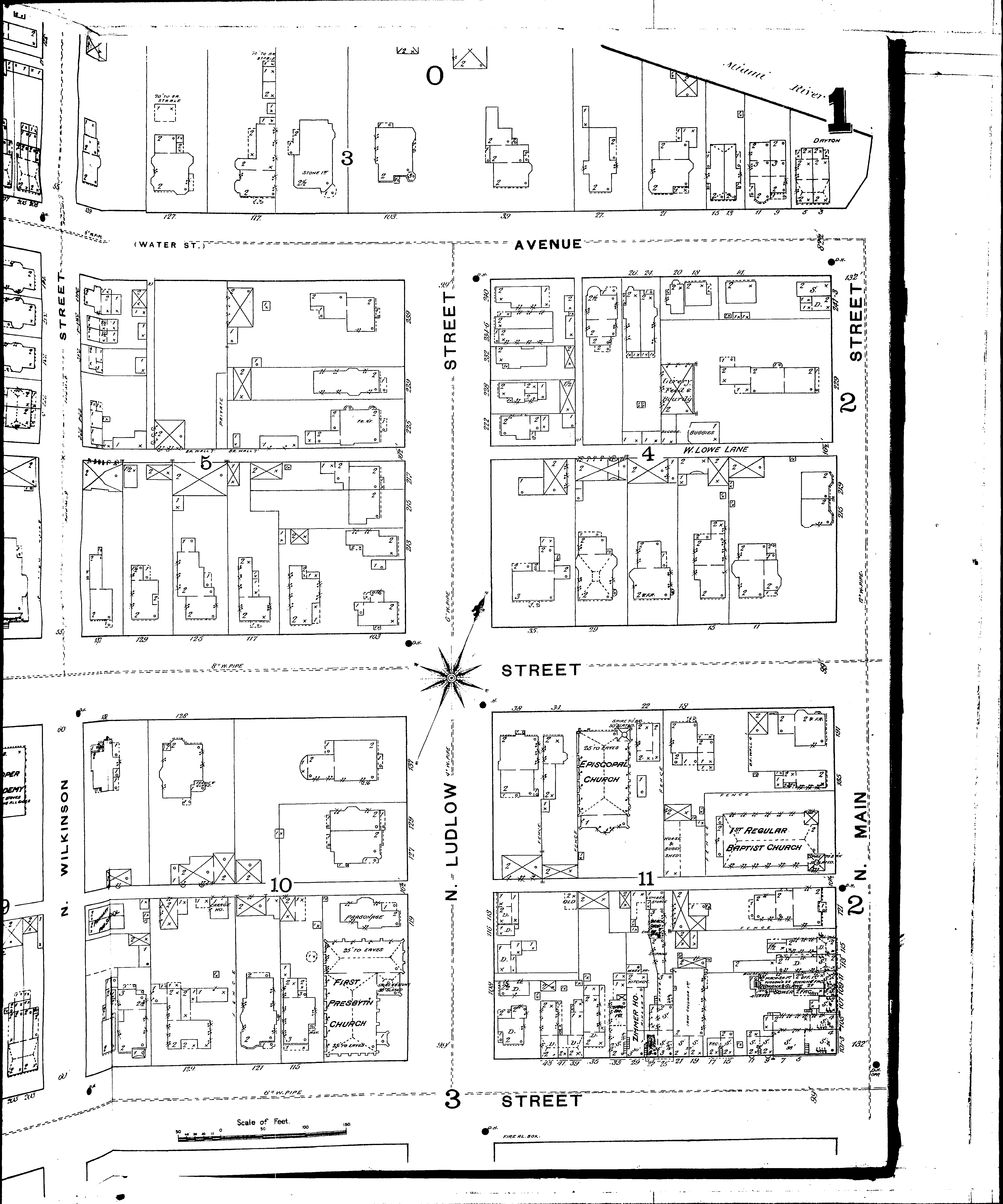
County: Montgomery Co.
City: Dayton
Date: 1887
Currently viewing image: 5 of 65
Previous - Next

Current sheet label: 1
Jump to sheet label:

Print map from PDF
Download full image
Download current view

Locations:
Cooper Academy
Episcopal Church
First Presbyterian Church
First Regular Baptist Church
Second District Public Schools
Swank & Glawe, Sower Factory
Zimmer Hotel

Streets:
Bridge, W [1-54]
First, W [1-354]
Liberty [1-20]
Lowe Lane, W
Ludlow, N [101-240]
Main, N [101-243]
Monument Ave., W [1-352]
Perry, N [101-146]
Second, W [1-417]
Wilkinson, N [100-335]