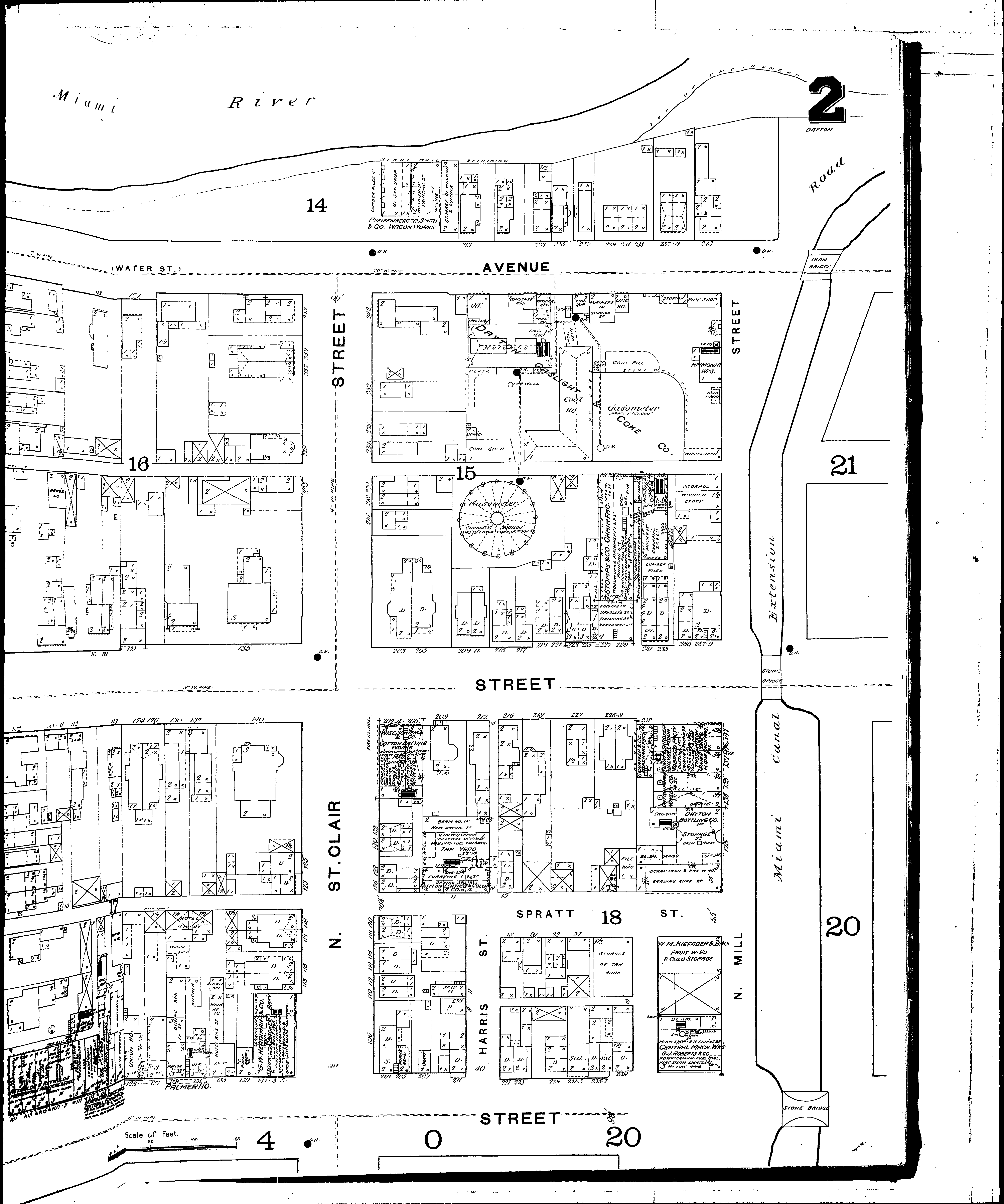
County: Montgomery Co.
City: Dayton
Date: 1887
Currently viewing image: 7 of 65
Previous - Next

Current sheet label: 2
Jump to sheet label:

Print map from PDF
Download full image
Download current view

Locations:
Central Machine Works
Cotterill, Fenner & Co., Tob. Wks
Dayton Bottling Co
Dayton Gaslight & Coke Co
Dayton Leather & Collar Co
Dayton Paper Novelty Co
Grand Opera House
Heathman, G. W., & Co., Cracker Bakery
Kiefaber, W.M., & Bro., Cold Storage
Music Hall
Nixon, T., Paper Bag, &c., Mfy
North Star Tobacco Works
Ohmer, M., Sons, Furniture Fact
Palmer, House
Pfeifenberger, Smith & Co., Wagon Works
Reynolds & Reynolds, Printers
Roberts, G. J., & Co., Mach. Wks
Roller Skating Rink
Schaffer & Co., Wire Rake Fact
Silver Moon Tobacco Factory
Stomps, G., & Co., Chair Factory
Terry & Shroyer, Tobacco Fact
Union Hotel
Wise, Schieble & Co., Cot. Batting Wks

Streets:
First, E [1-240]
Harris
Jefferson, N [100-245]
Main, N [100-244]
Mill, N [101-245]
Monument Ave., E [1-246]
St. Clair, N [100-245]
Second, E [1-245]
Spratt
Water St [1-246]