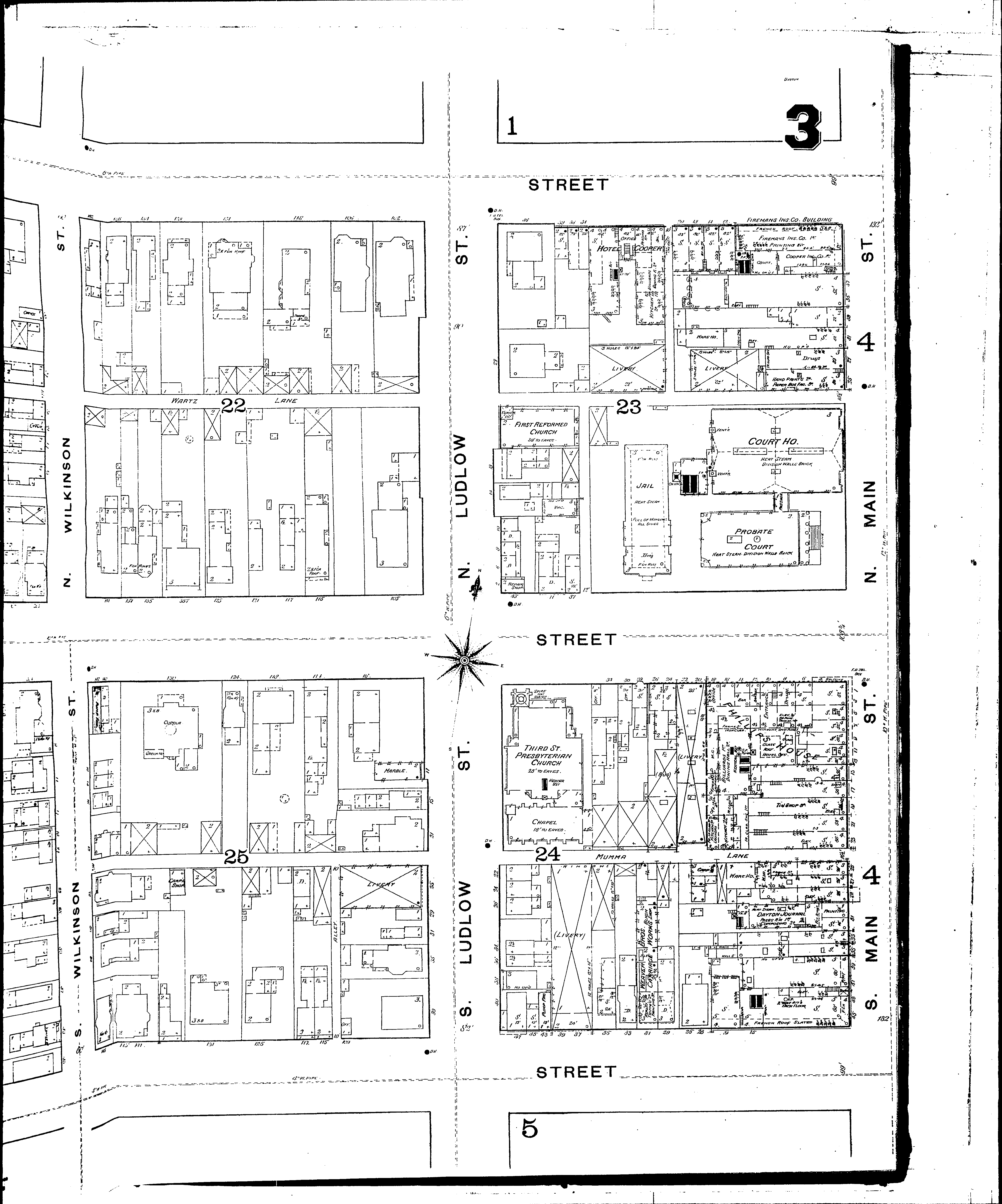
County: Montgomery Co.
City: Dayton
Date: 1887
Currently viewing image: 9 of 65
Previous - Next

Current sheet label: 3
Jump to sheet label:

Print map from PDF
Download full image
Download current view

Locations:
Cooper Hotel
Court House & Jail
Dayton Journal Printing
Fireman Ins. Co.s Bldg
First Reformed Church
Hotel Cooper
Phillips House
Third Street Presb. Church
Weaver Bros., Carriage Works

Streets:
Fourth, W [1-337]
Ludlow, N [1-42]
Ludlow, S [1-40]
Main, N [1-45]
Main, S [1-45]
Mumma Lane
Perry, N [1-50]
Perry, S [1-48]
Roe [2-30]
Roe [31-50]
Second, W [2-414]
Sycamore [1-44]
Third, W [1-406]
Wartz Lane
Wilkinson, N [1-50]
Wilkinson, S [1-46]