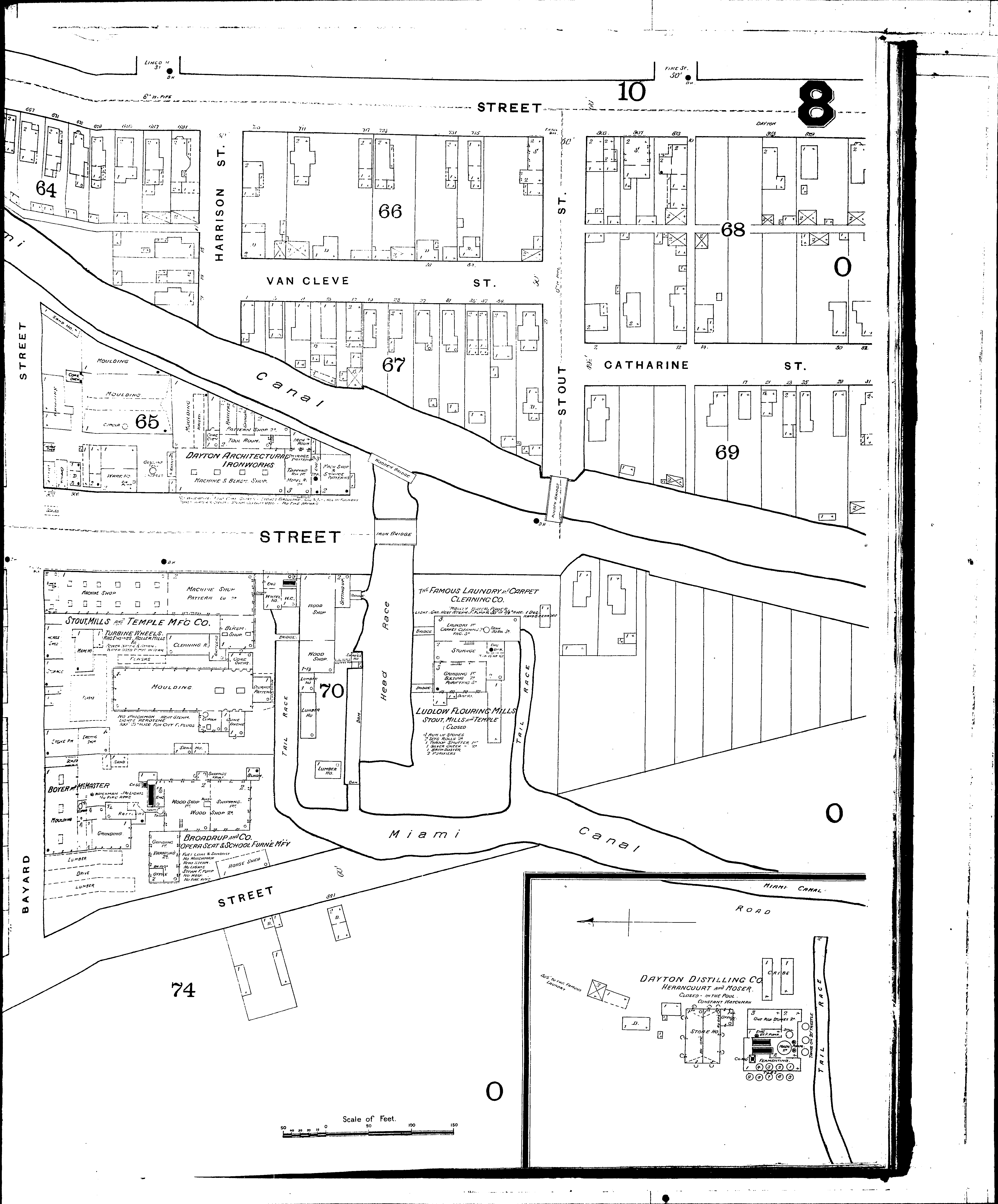
County: Montgomery Co.
City: Dayton
Date: 1887
Currently viewing image: 19 of 65
Previous - Next

Current sheet label: 8
Jump to sheet label:

Print map from PDF
Download full image
Download current view

Locations:
Architectural Iron Works
Boyer & McMaster, Foundry
Broadrup & Co., Furniture Mfy
Crume & Sefton, Mfg Co
Dayton Architectural Iron Works
Dayton Distilling Co
Drovers Exchange
Famous Laundry & Carpet Cleaning Company
Herancourt & Moser, Distillery
Ludlow Flour Mills
Stout, Mills & Temple Mfg Co., Machines
Stout, Mills & Temple Mfg Co., Flour Mill
Stout, Mills & Temple Mfg Co., Fl. M
Wesleyan Chapel

Streets:
Bayard
Bruen [2-214]
Catharine [1-32]
Charter [101-130]
Harrison
Ludlow, S [700-945]
Main, S [601-835]
Prairie [601-940]
Stout
Van Cleve
Zeigler