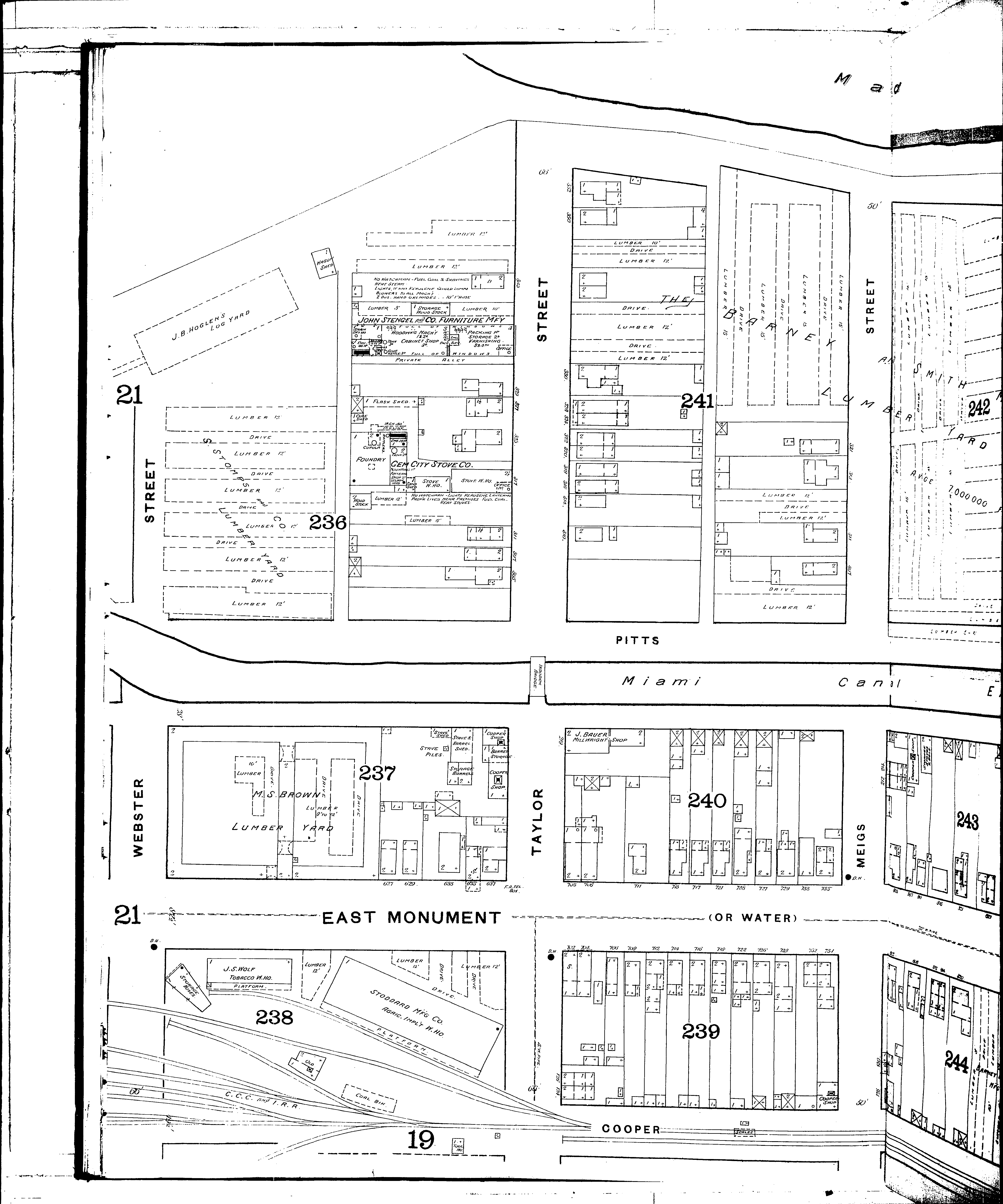
County: Montgomery Co.
City: Dayton
Date: 1887
Currently viewing image: 46 of 65
Previous - Next

Current sheet label: 22
Jump to sheet label:

Print map from PDF
Download full image
Download current view

Locations:
Barney & Smith, Mfg Co
Batter, J., Millwright
Brown, M. S., Lumber Yard
Gem City Stove Co
Snyder, C. F., Extension Table Mfy
Stengel, J., & Co., Furniture Mfy
Stomps, S., & Co., Lumber Yard
Wolf, J. S., Tobacco Warehouse

Streets:
Cooper [Webster to Keowee]
Keowee [19-335]
Meigs [121-350]
Monument Ave., E [600-877]
Pitts
Taylor [121-352]
Webster [224-360]