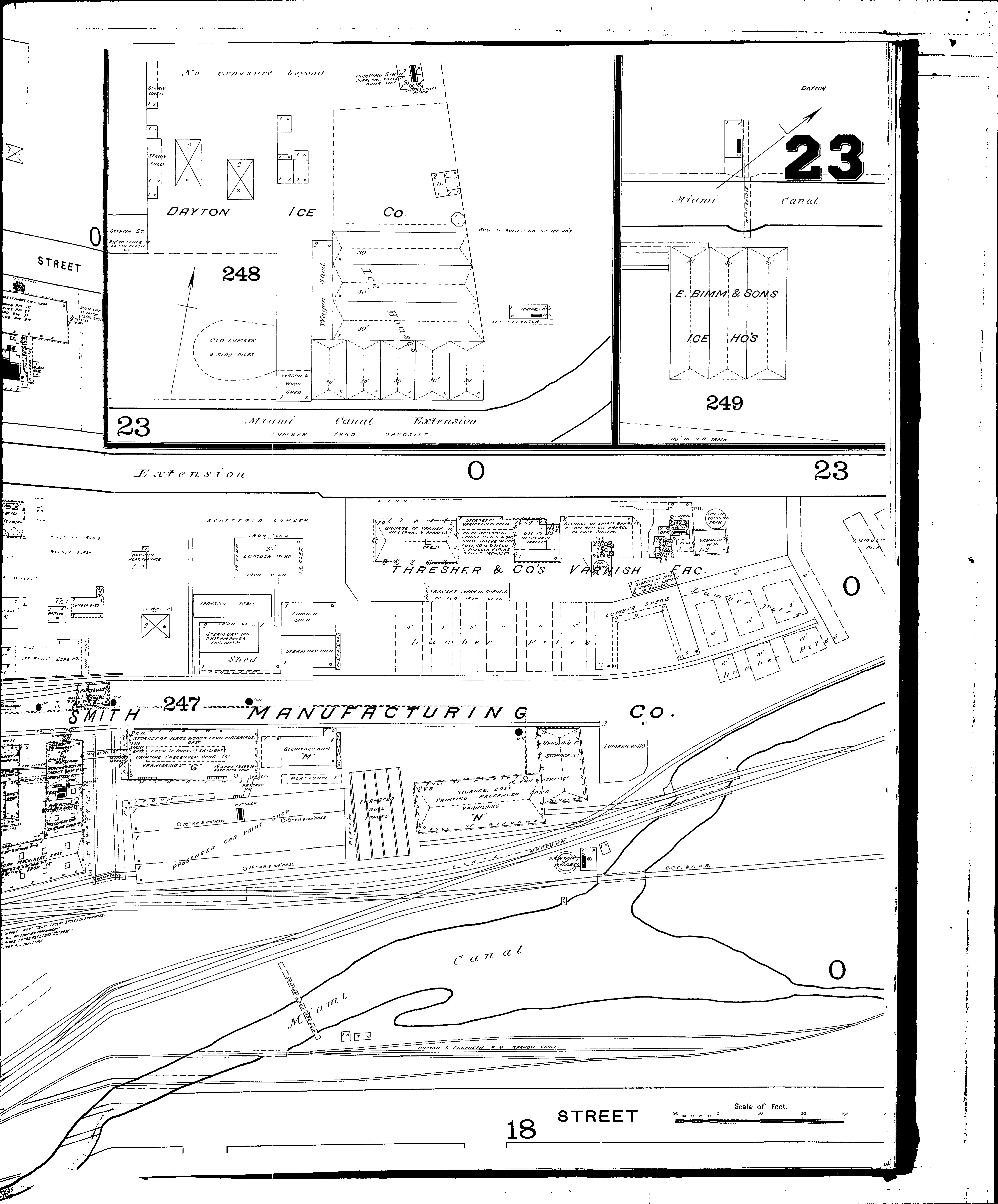
County: Montgomery Co.
City: Dayton
Date: 1887
Currently viewing image: 49 of 65
Previous - Next

Current sheet label: 23
Jump to sheet label:

Print map from PDF
Download full image
Download current view

Locations:
Bimm, E., & Sons, Ice Houses
Dayton Ice Co
Dayton Screw Company
Dayton Water Works
Thresher & Co., Varnish Factory

Streets:
First, E [901-1325]
Keowee [2-340]
Ottawa