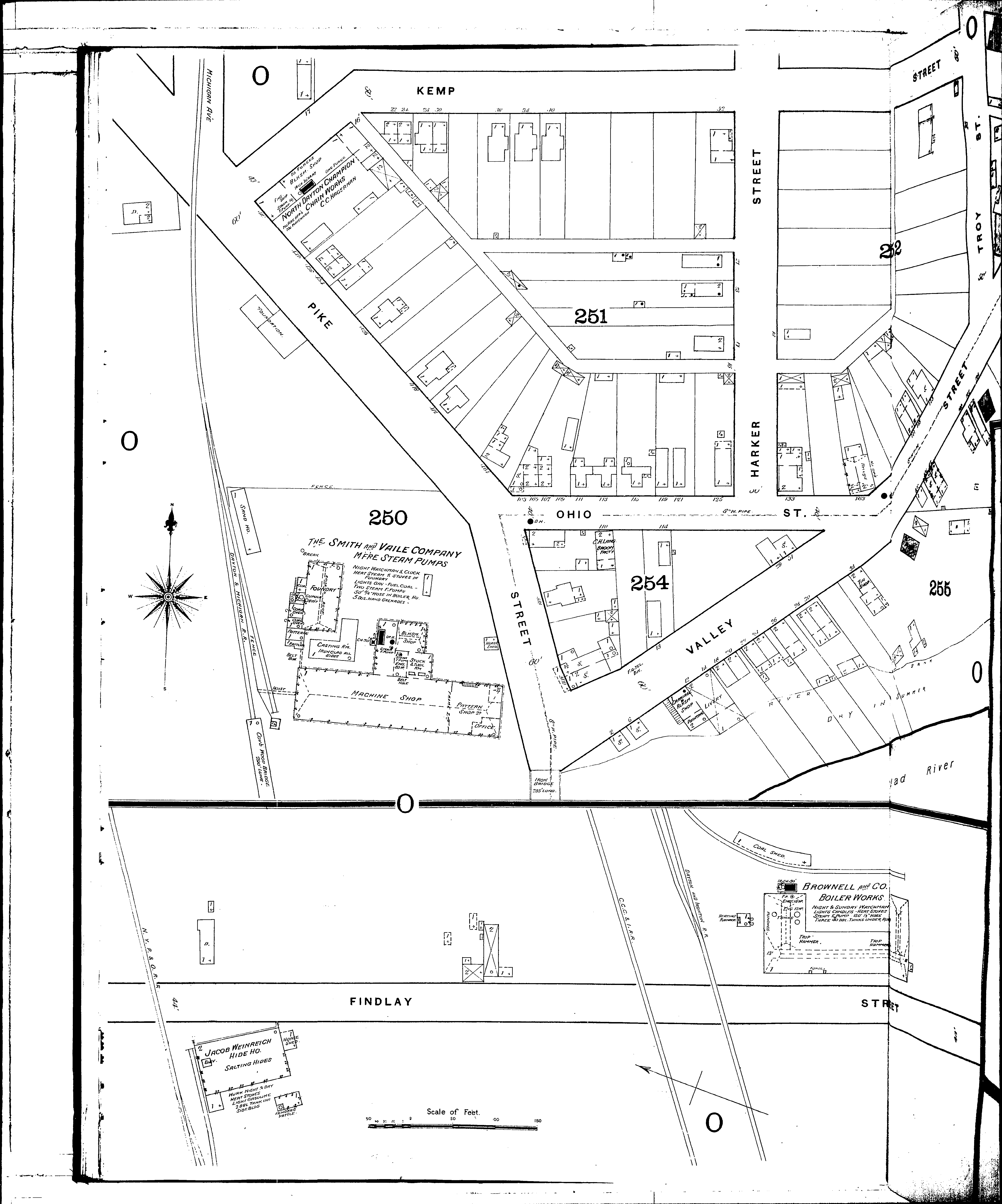
County: Montgomery Co.
City: Dayton
Date: 1887
Currently viewing image: 50 of 65
Previous - Next

Current sheet label: 24
Jump to sheet label:

Print map from PDF
Download full image
Download current view

Locations:
Aqueduct Mills
Ballon, G. W., Car Trust
Boston Car Trust
Brownell & Co., Boiler Works
Hagerman, C. C., Chain Works
Hawes, C. L., Co., Mills
North Dayton Champion Chain Works
Smith & Vaile Company
Weinreich, J., Hide House

Streets:
Harker [1-40]
Kemp
Ohio
Pike [300-515]
Plane [1-18]
Troy [1-30]
Valley [1-224]