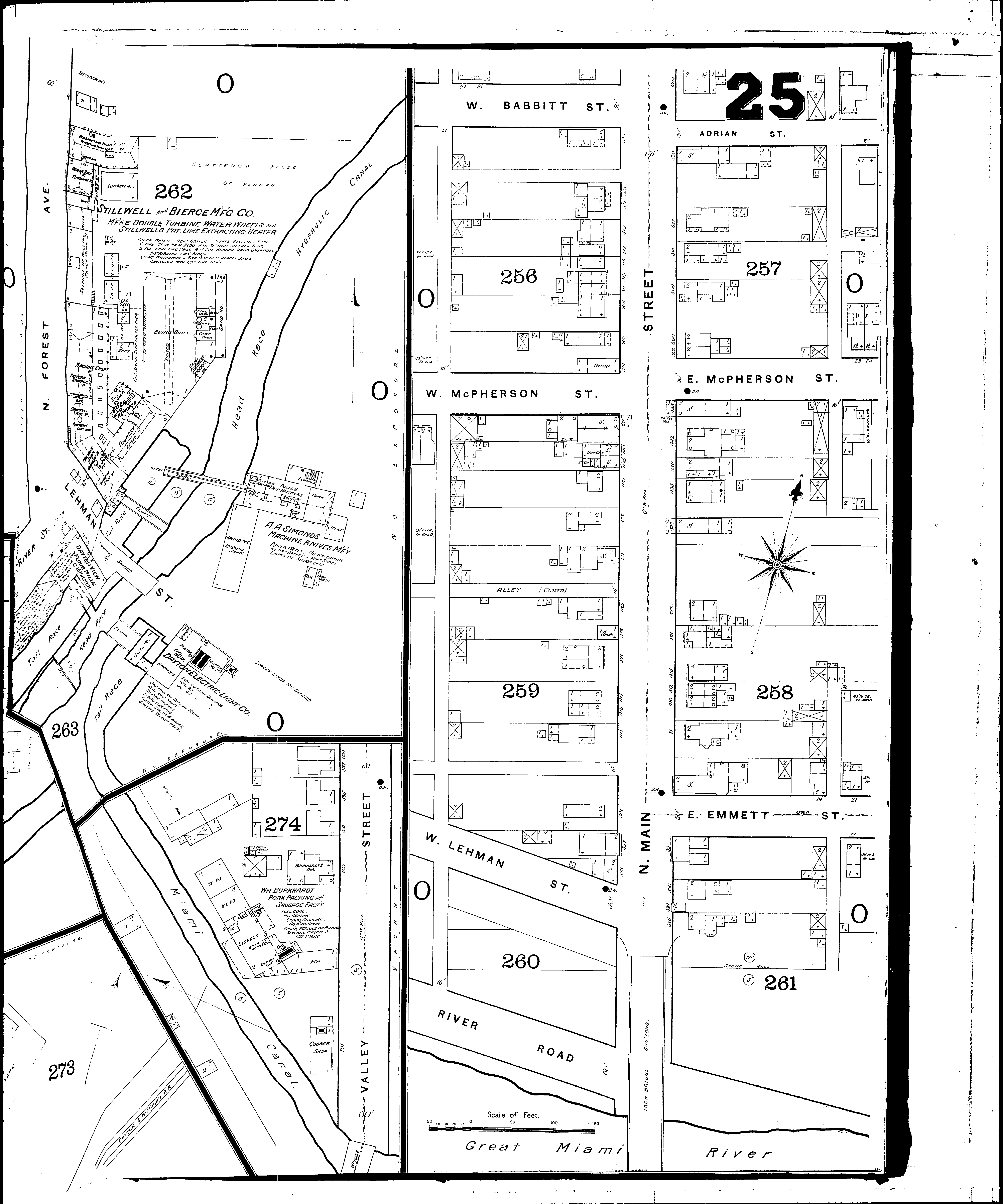
County: Montgomery Co.
City: Dayton
Date: 1887
Currently viewing image: 53 of 65
Previous - Next

Current sheet label: 25
Jump to sheet label:

Print map from PDF
Download full image
Download current view

Locations:
Burkhardt, W., Pork Packing
Dayton Electric Light Co
Dayton Steam Carpt Cleang Wks
Dayton View Brewery
Dayton View Flour Mills
Eleventh District Public School
Federer, G., Stables
Palmer, C. B., Flour Mills
Riverside Brewery
Schantz, G., & Co., Brewery
Schwind, C., Brewery
Simonds, A. A., Mach. Knife Mfy
Stillwell & Bierce Mfg Co

Streets:
Adrian [1-22]
Babbitt, W [1-24]
Central Ave., N [125-145]
Emmett, E [1-24]
Forest Ave., N., near River
Lehman, parts of
McPherson, E [1-26]
McPherson, W [1-24]
Main, N [350-605]
Main, N [850-909]
Pike, near Kiser
River [15-260]
Salem, N., near River
Salem, N [Superior to Gilbert]
Superior [Salem to Central Ave.]
Valley [800-839]