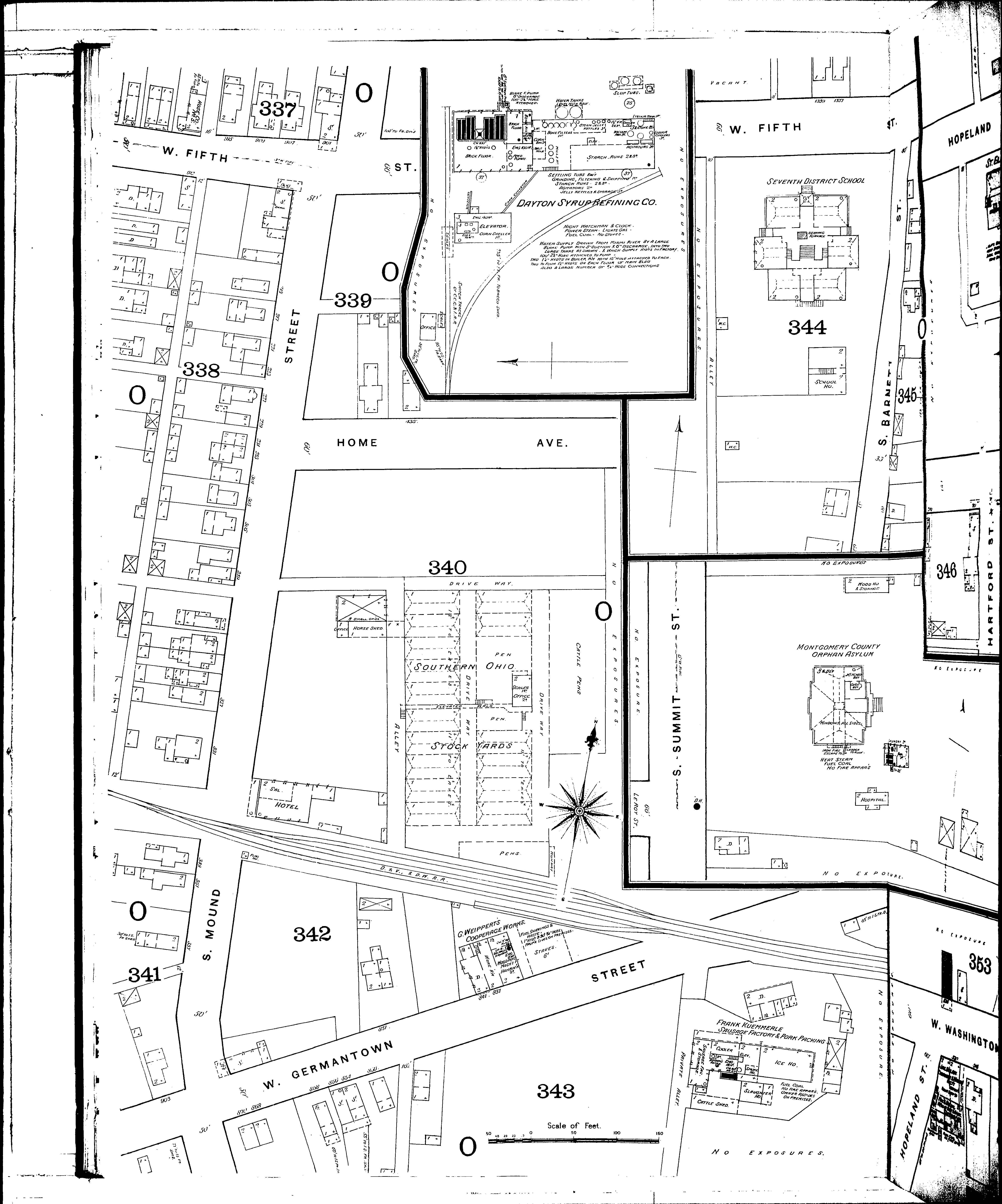
County: Montgomery Co.
City: Dayton
Date: 1887
Currently viewing image: 62 of 65
Previous - Next

Current sheet label: 30
Jump to sheet label:

Print map from PDF
Download full image
Download current view

Locations:
Bolan, J., Carriage Factory
Columbia Bridge Works
Dayton Syrup Refining Co
Kuemmerle, F., Pork Packing
Mix & Bolan, Mfy Bolt Clippers
Montgomery Co. Orphan Asylum
St. Elizabeth Hospital
Seventh District Public School
Southern Ohio Stock Yards
Weippert, G., Cooperage

Streets:
Barnett, S [1-66]
Cincinnati [245-350]
Fifth, W [555-585]
Fifth, W [835-924]
Fifth, W [1325-1348]
Germantown [805-910]
Home Avenue [405-446]
Hopeland [125-142]
Lonie, near Washington
Mound [200-375]
Washington [501-530]
Washington [755-840]