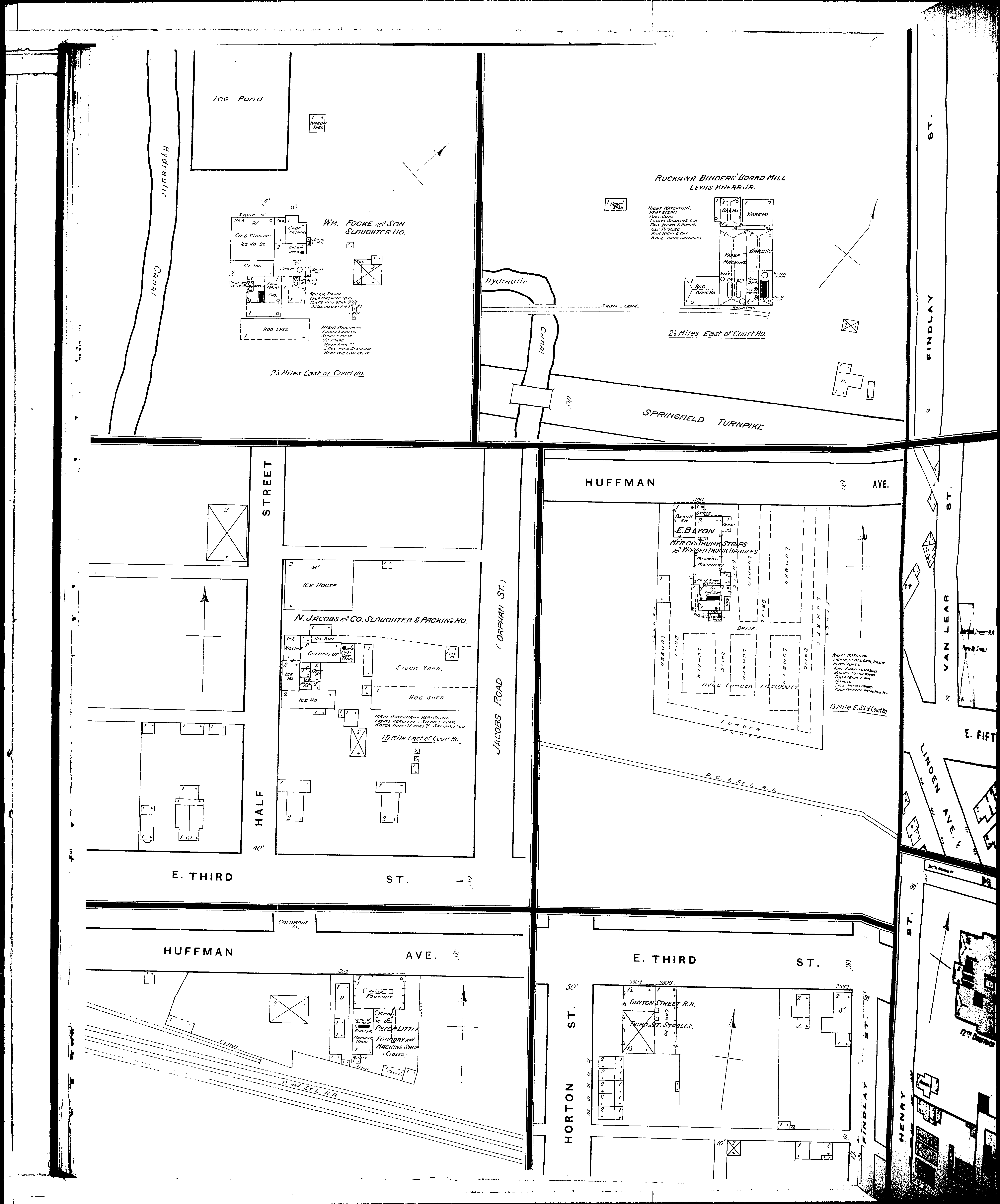
County: Montgomery Co.
City: Dayton
Date: 1887
Currently viewing image: 64 of 65
Previous - Next

Current sheet label: 31
Jump to sheet label:

Print map from PDF
Download full image
Download current view

Locations:
Dayton Manufacturing Co
Focke, W., & Son, Slaughter Ho
Jacobs, N., & Co., Slaughter Ho
Knerr, L., Jr., Paper Mill
Little, P., Machine Shop
Lyon, E. B., Wood Works
McCallum, J. & Co., Fertilizer Works
Ruckawa Binders Board Mill
Sixth District School
Twelfth District School
Widows Home

Streets:
Fifth, E., near Linden Ave
Findlay [1-18]
Henry [350-380]
Hickory [401-420]
Horton [1-24]
Linden Ave [130-215]
McClure [260-279]
Monroe, near Jackson
Third, E [2204-2240]
Third, E [2500-2536]
Van Lear, near Fifth