County: Montgomery Co.
City: Dayton
Date: 1918-1932 vol. 2, 1919
Currently viewing image: 20 of 108
Previous - Next

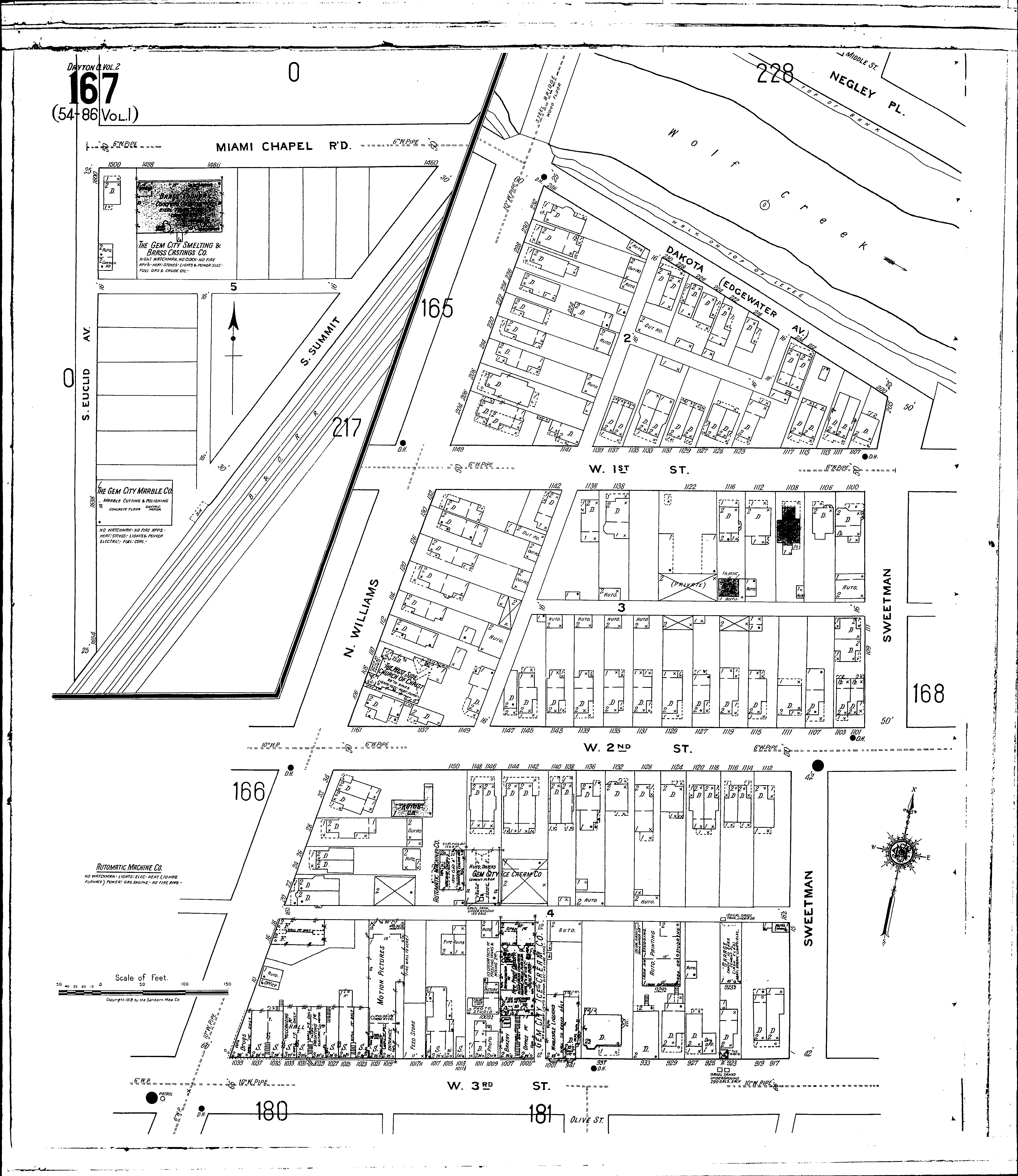
Current sheet label: 167
Jump to sheet label:

Print map from PDF
Download full image
Download current view

A full color archival version of this map is available from the Kent State University Institutional Repository.

Locations:
Automatic Machine Co., Machine Shop
Gem City Ice Cream Co., Ice Cream Factory
Gem City Marble Co., Marble Cutting and Polishing
Gem City Smelting and Brass Casting Co., Foundry
West Side Church of Christ

Streets:
Dakota [200-246]
Euclid Ave., S [1600-1654]
First, W [1100-1149]
Miami Chapel Road [1460-1500]
Second, W [1100-1161]
Summit, S [1601-1655]
Sweetman [1-205]
Third, W [915-1039]
Williams, N [2-234]