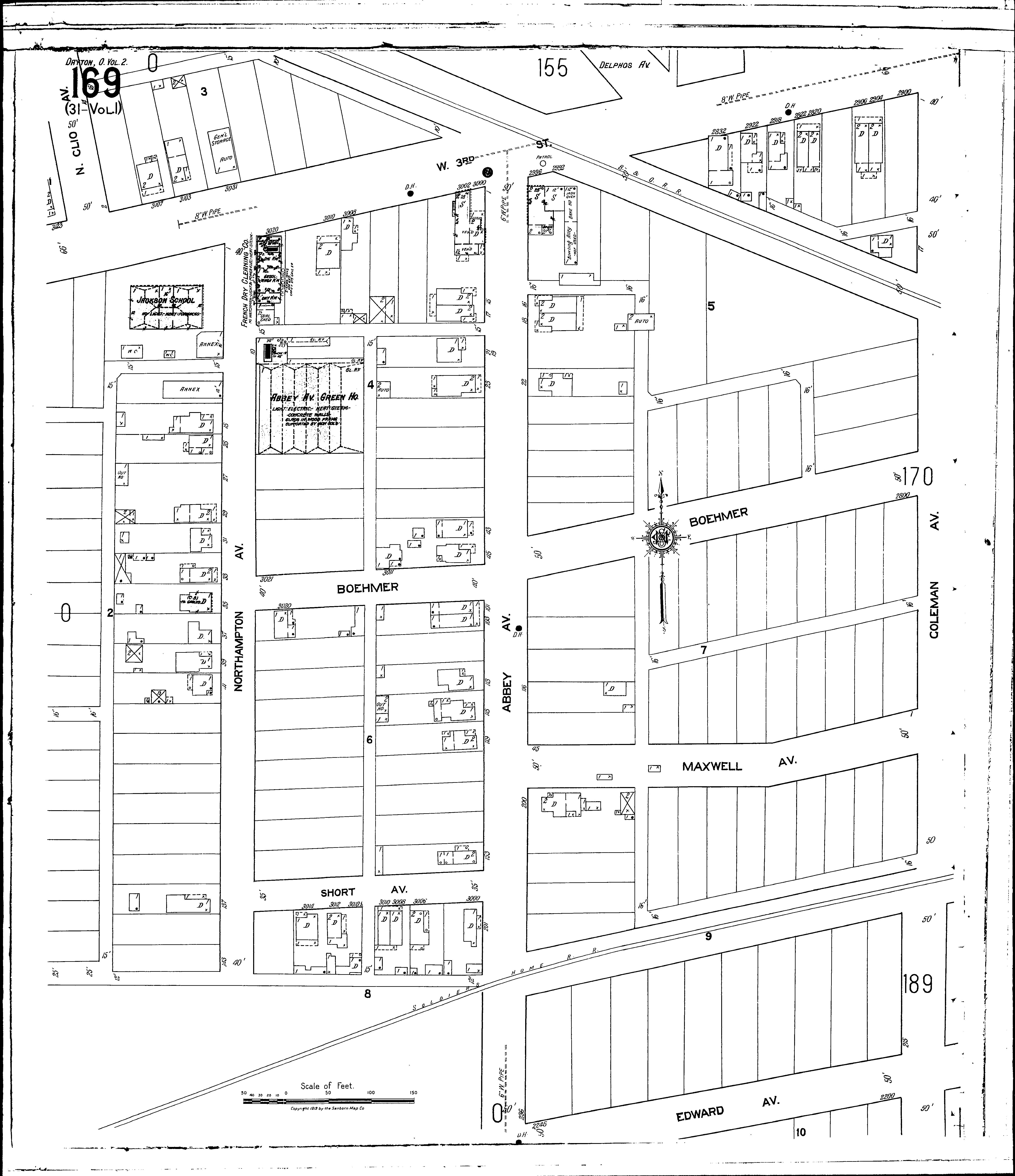
County: Montgomery Co.
City: Dayton
Date: 1918-1932 vol. 2, 1919
Currently viewing image: 22 of 108
Previous - Next

Current sheet label: 169
Jump to sheet label:

Print map from PDF
Download full image
Download current view

A full color archival version of this map is available from the Kent State University Institutional Repository.

Locations:
Abbey Avenue Greenhouse
French Dry Cleaning Co
Jackson School

Streets:
Abbey Ave [1-236]
Boehmer [2800-3021]
Clio Ave [1-14]
Coleman Ave [1-215]
Edward Ave [2200-2245]
Maxwell Ave [1-46]
Northampton Ave [1-144]
Short, Ave [3000-3019]
Third, W [2900-2946]
Third, W [3000-3109]