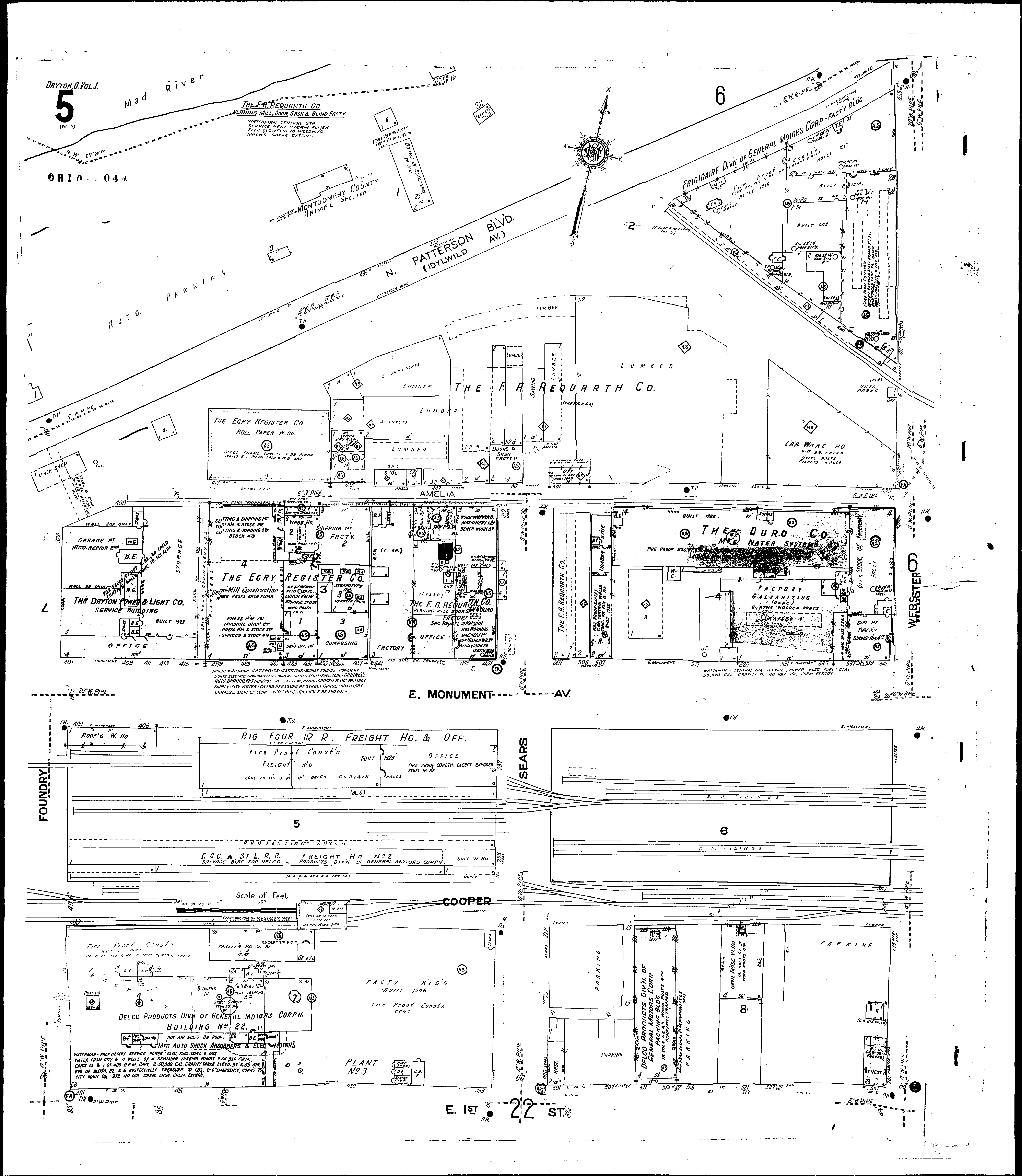
County: Montgomery Co.
City: Dayton
Date: 1918-Dec. 1950 vol. 1, 1918-Oct. 1950
Currently viewing image: 11 of 109
Previous - Next

Current sheet label: 5
Jump to sheet label:

Print map from PDF
Download full image
Download current view

A full color archival version of this map is available from the Kent State University Institutional Repository.

Locations:
General Motors Corp., Delco Prod. Div.: Auto Shock Absorbers, &c., Mfg
General Motors Corp., Delco Prod. Div.: Packing Bldg
General Motors Corp., Frigidaire Div
Big Four R. R. Freight House and Office
C. C. C. & St. L. R. R. Frght Ho. No. 2
Dayton Power and Light Co.: Service Building
Delco Products Corpn: Building No. 22
Duro Co., Water Systems Mfg
Egry Register Co
Mead Corpn, Loft Buildings
Montgomery County Animal Shelter
Requarth, F. A., Co., Planing Mill, &c
Spitzner, C. H., & Son, Tobacco W. Ho

Streets:
Amelia [400-539]
First, E [401-541]
Foundry [200-320]
Monument Ave., E [400-541]
Patterson, Boulevard, N [400-445]
Patterson, Boulevard, N [500-544]
Sears [200-319]
Webster [201-439]