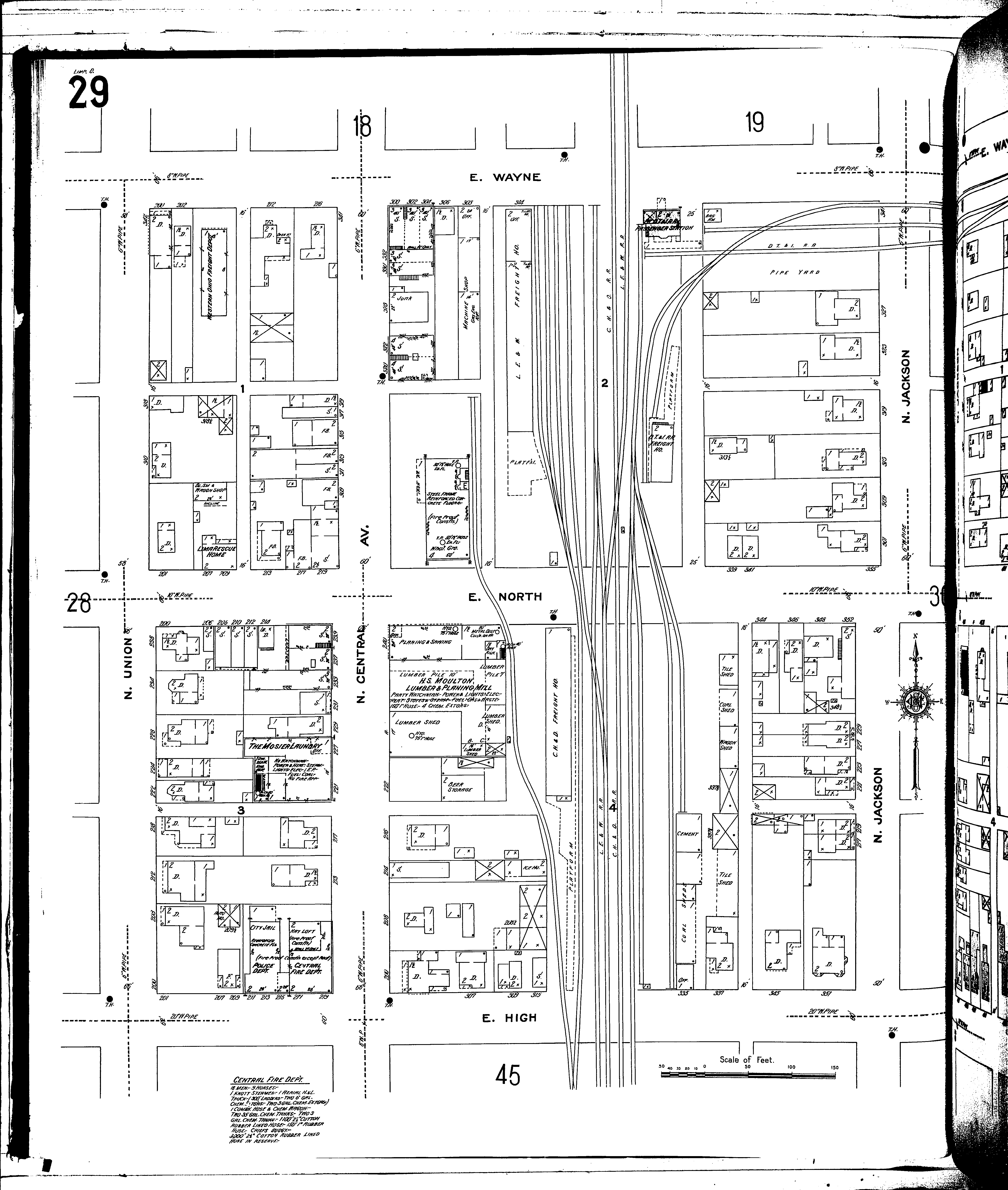
County: Allen Co.
City: Lima
Date: 1911
Currently viewing image: 33 of 97
Previous - Next

Current sheet label: 29
Jump to sheet label:

Print map from PDF
Download full image
Download current view

A full color archival version of this map is available from the Kent State University Institutional Repository.

Locations:
C. H. & D. R. R. Freight House
D. T. & I. R. R. Depots
Fire Department, Central Co
L. E. & W. R. R. Freight House
Lima Rescue Home
Mosier Laundry
Moulton, H. S., Lumber & Plang Mill
Police Department Building
Western Ohio Freight Depot

Streets:
Central Ave., N [200-341]
High, E [201-351]
Jackson, N [201-341]
North, E [200-355]
Union, N [200-342]
Wayne, E [200-350]