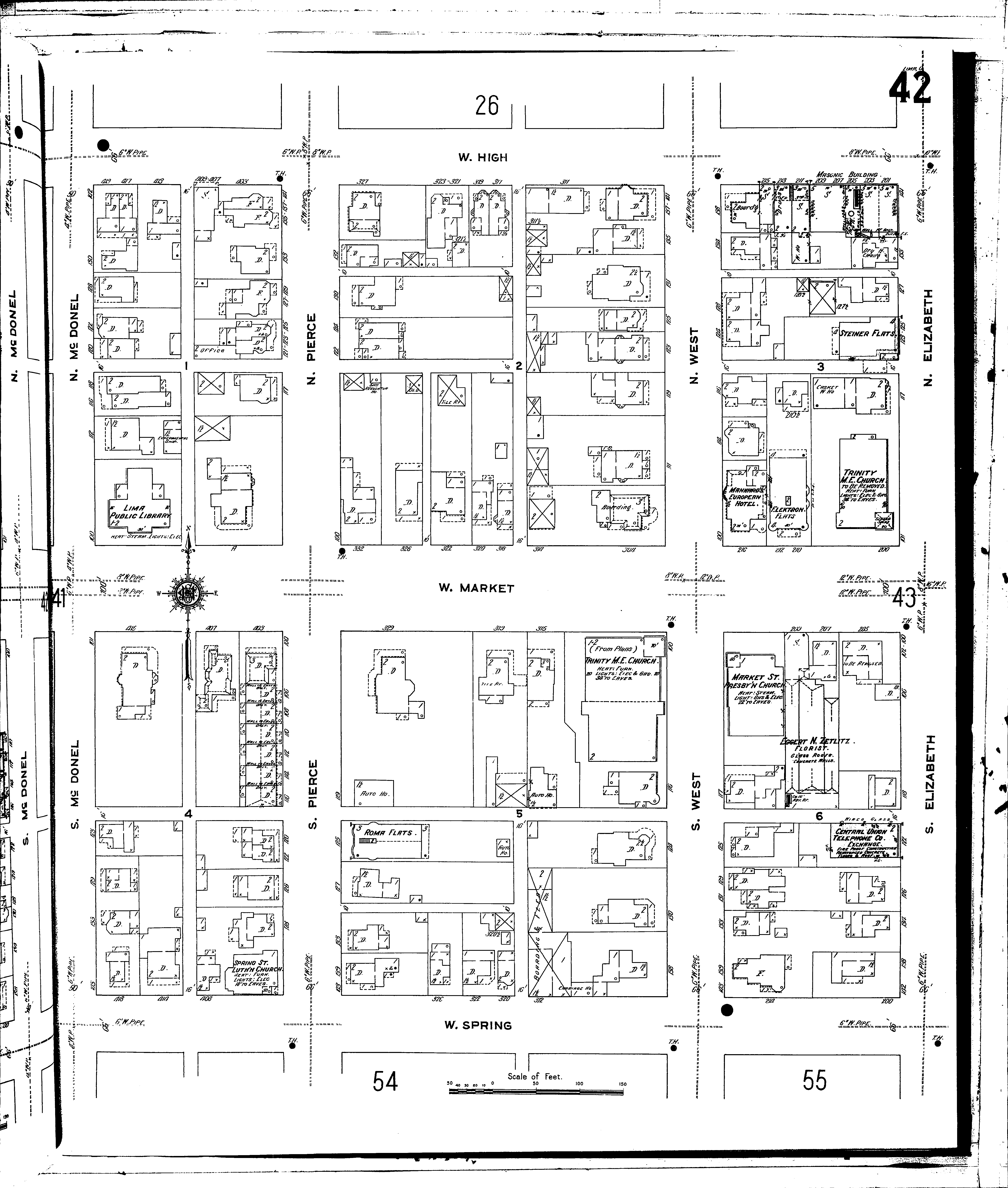
County: Allen Co.
City: Lima
Date: 1911
Currently viewing image: 46 of 97
Previous - Next

Current sheet label: 42
Jump to sheet label:

Print map from PDF
Download full image
Download current view

A full color archival version of this map is available from the Kent State University Institutional Repository.

Locations:
Central Union Telephone Co., Exchange
Elektron Flats
Lima Public Library
Manhards European Hotel
Market Street Presbyterian Church
Masonic Building
Roma Flats
Spring Street Lutheran Church
Steiner Flats
Trinity Methodist Episcopal Church
Zetlitz, E. M., Florist

Streets:
Elizabeth, N [101-141]
Elizabeth, S [100-142]
High, W [201-419]
McDonel, N [100-142]
McDonel, S [101-143]
Market, W [200-419]
Pierce, N [100-141]
Pierce, S [100-143]
Spring, W [200-418]
West, N [100-141]
West, S [100-143]