County: Allen Co.
City: Lima
Date: 1911
Currently viewing image: 95 of 97
Previous - Next

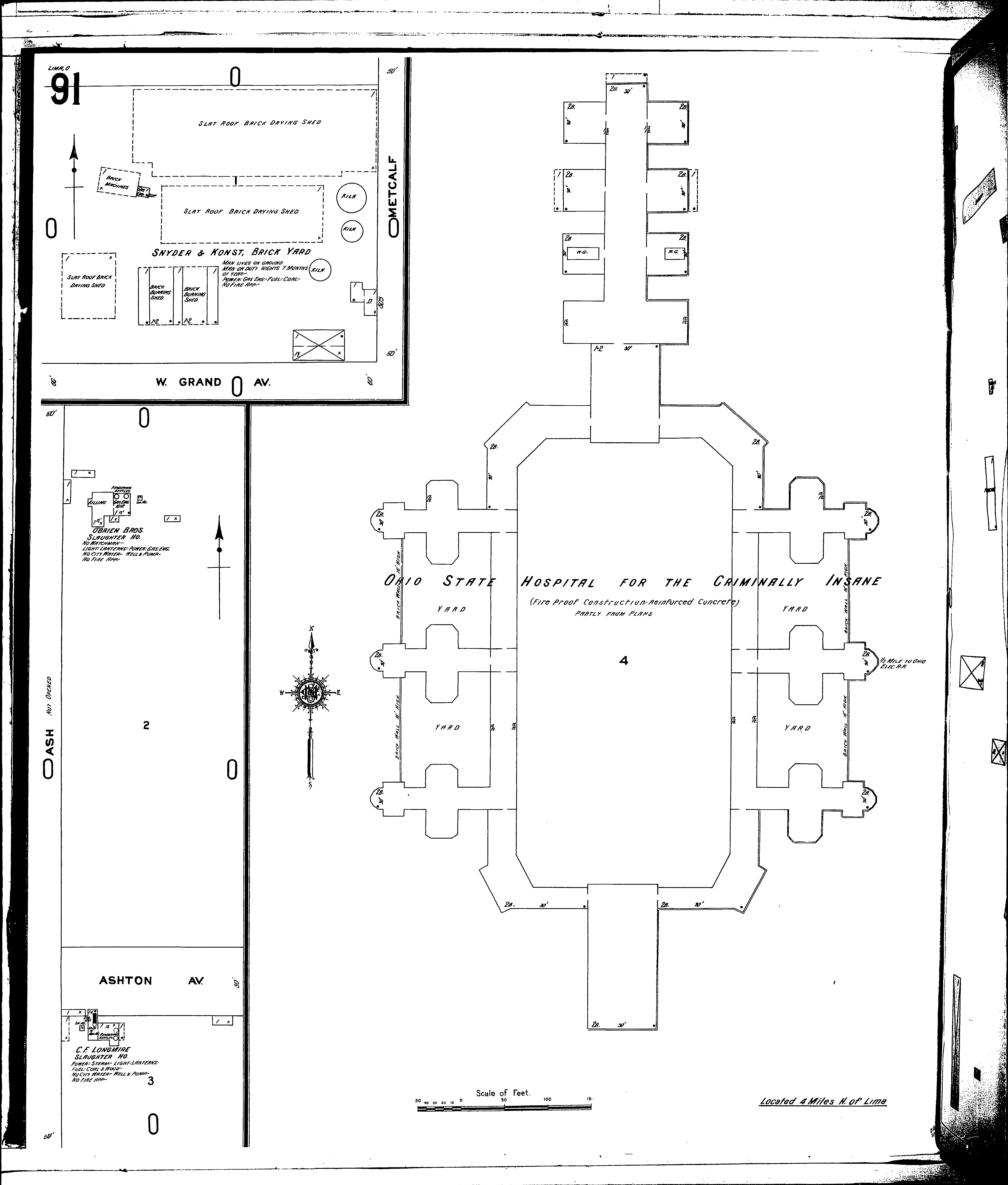
Current sheet label: 91
Jump to sheet label:

Print map from PDF
Download full image
Download current view

A full color archival version of this map is available from the Kent State University Institutional Repository.

Locations:
Longmire, C. F., Slaughter House
OBrien Bros., Slaughter House
Ohio State Hospital for the Criminally Insane
Snyder & Konst, Brick Yard

Streets:
Ash
Ashton Ave
Grand Ave., W., N. S., W. of Metcalf
Metcalf, N [801-817]