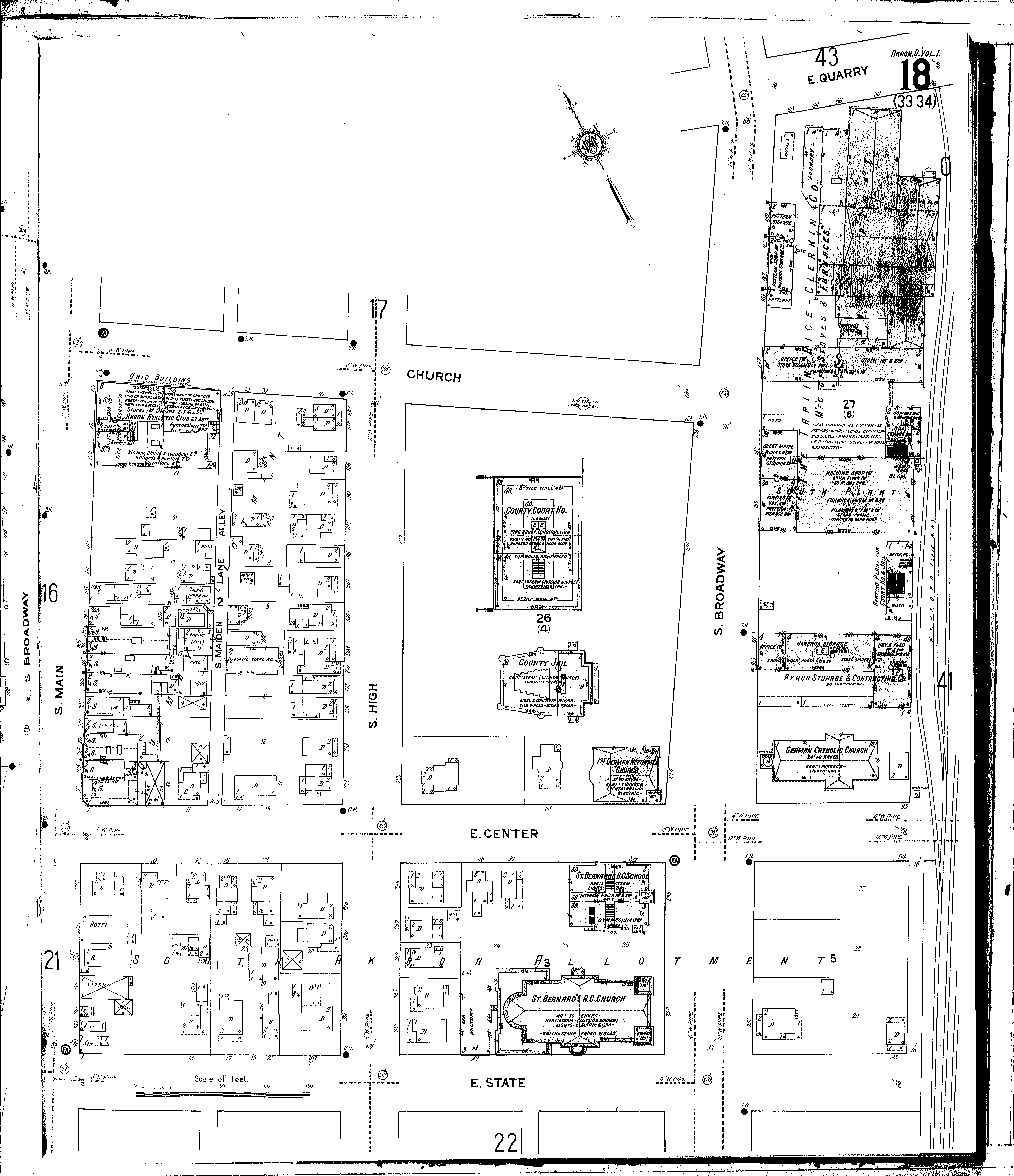
County: Summit Co.
City: Akron
Date: 1916 vol. 1
Currently viewing image: 23 of 100
Previous - Next

Current sheet label: 18
Jump to sheet label:

Print map from PDF
Download full image
Download current view

A full color archival version of this map is available from the Kent State University Institutional Repository.

Locations:
Akron Athletic Club Rooms
Akron Storage and Contracting Co
County Court House and Jail
First German Reformed Church
German Catholic Church
Ohio Building
St. Bernards R. C. Church and School
Taplin- Rice-Clerkin Co., Stove and Furnace Mfg

Streets:
Broadway, S [145-179]
Broadway, S [180-257]
Center, E [1-94]
Church [2-70]
High, S [176-255]
Maiden Lane Alley, S.: [Church to E. Center]
Main, S [167-249]
Quarry, E [76-98]
State, E [1-95]

Additions:
South Akron Allotment