County: Summit Co.
City: Akron
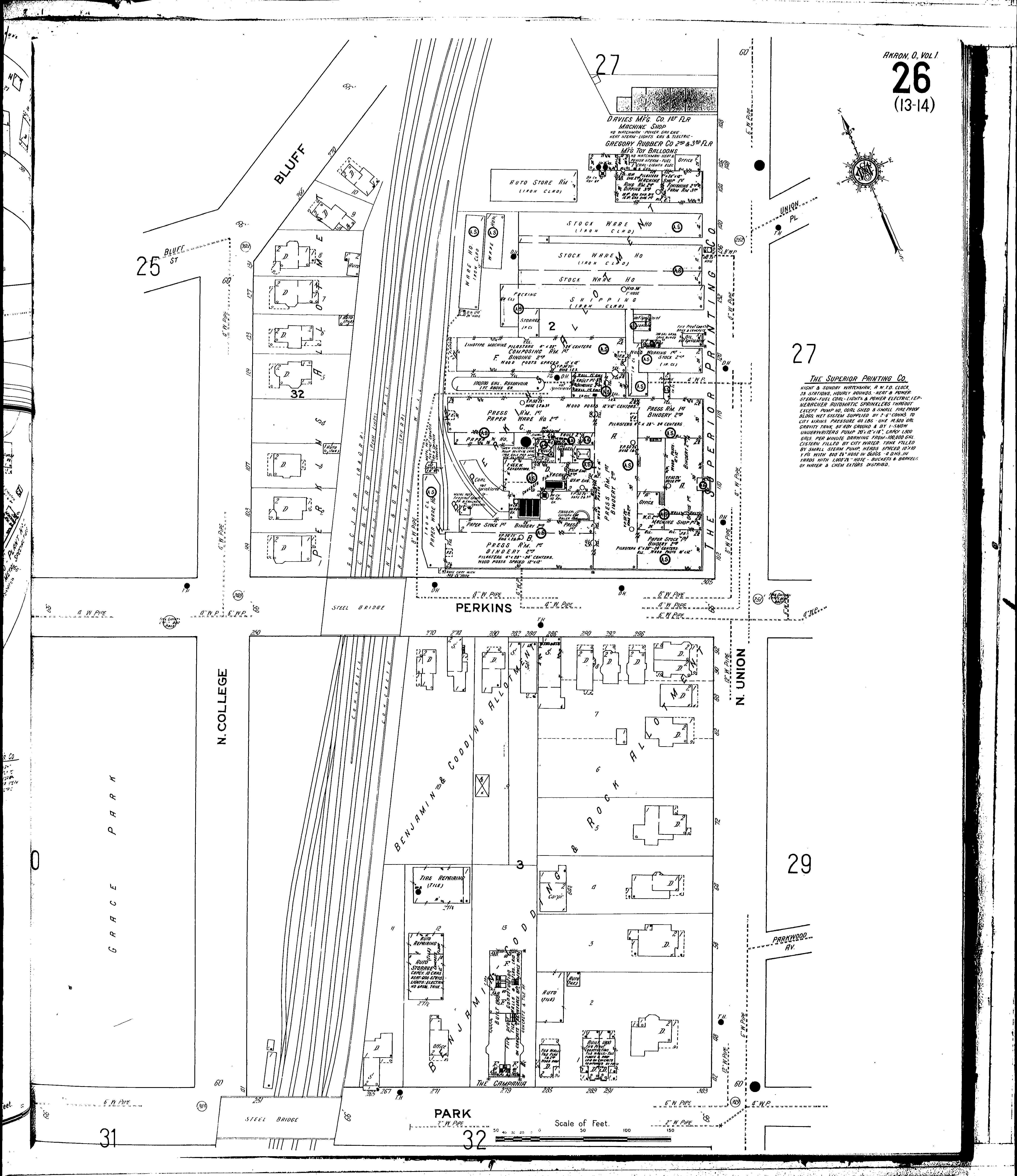
Date: 1916 vol. 1
Currently viewing image: 31 of 100
Previous - Next

Current sheet label: 26
Jump to sheet label:

Print map from PDF
Download full image
Download current view

A full color archival version of this map is available from the Kent State University Institutional Repository.

Locations:
Campania, The, Apartments
Davies Mfg Co., Machine Shop
Gregory Rubber Co., Toy Balloons
Superior Printing Co

Streets:
Bluff [260-308]
College, N [40-93]
College, N [95-131]
Park [231-305]
Perkins [218-244]
Perkins [246-305]
Union, N [42-148]

Additions:
Benjamin & Codding Allotment
Benjamin-Codding & Rock Allotment
Perkins H. B., Allotment