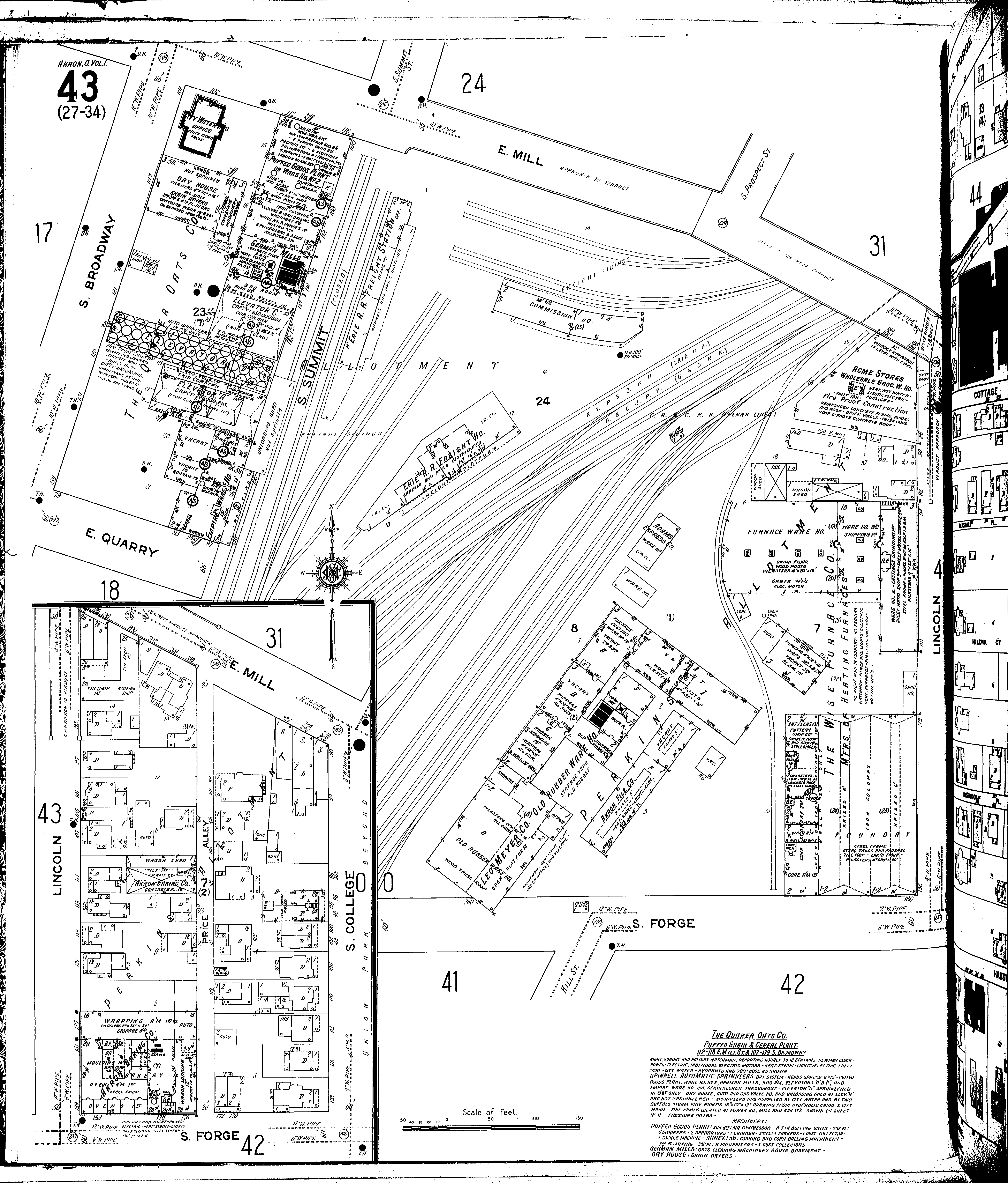
County: Summit Co.
City: Akron
Date: 1916 vol. 1
Currently viewing image: 48 of 100
Previous - Next

Current sheet label: 43
Jump to sheet label:

Print map from PDF
Download full image
Download current view

A full color archival version of this map is available from the Kent State University Institutional Repository.

Locations:
Acme Stores, Wholes, Grocery Wareho
Adams Express Co., Warehouse
Akron Baking Co
Akron File Co
City Water Works, Office
Empire Warehouse
E. R. R. Freight Houses
Leo Meyer & Co., Old Rubber Warehouse
Meyer, L., Co., Old Rubber Warehouse
Quaker Oats Co., Puffed Grain & Cereal Plant
Wise Furnace Co., Heating Furnace Mfg

Streets:
Broadway, S [101-143]
College, S [90-128]
Forge, S [156-270]
Lincoln
Mill, E [100-226]
Price Alley
Quarry, E [75-99]
Summit, S [100-149]