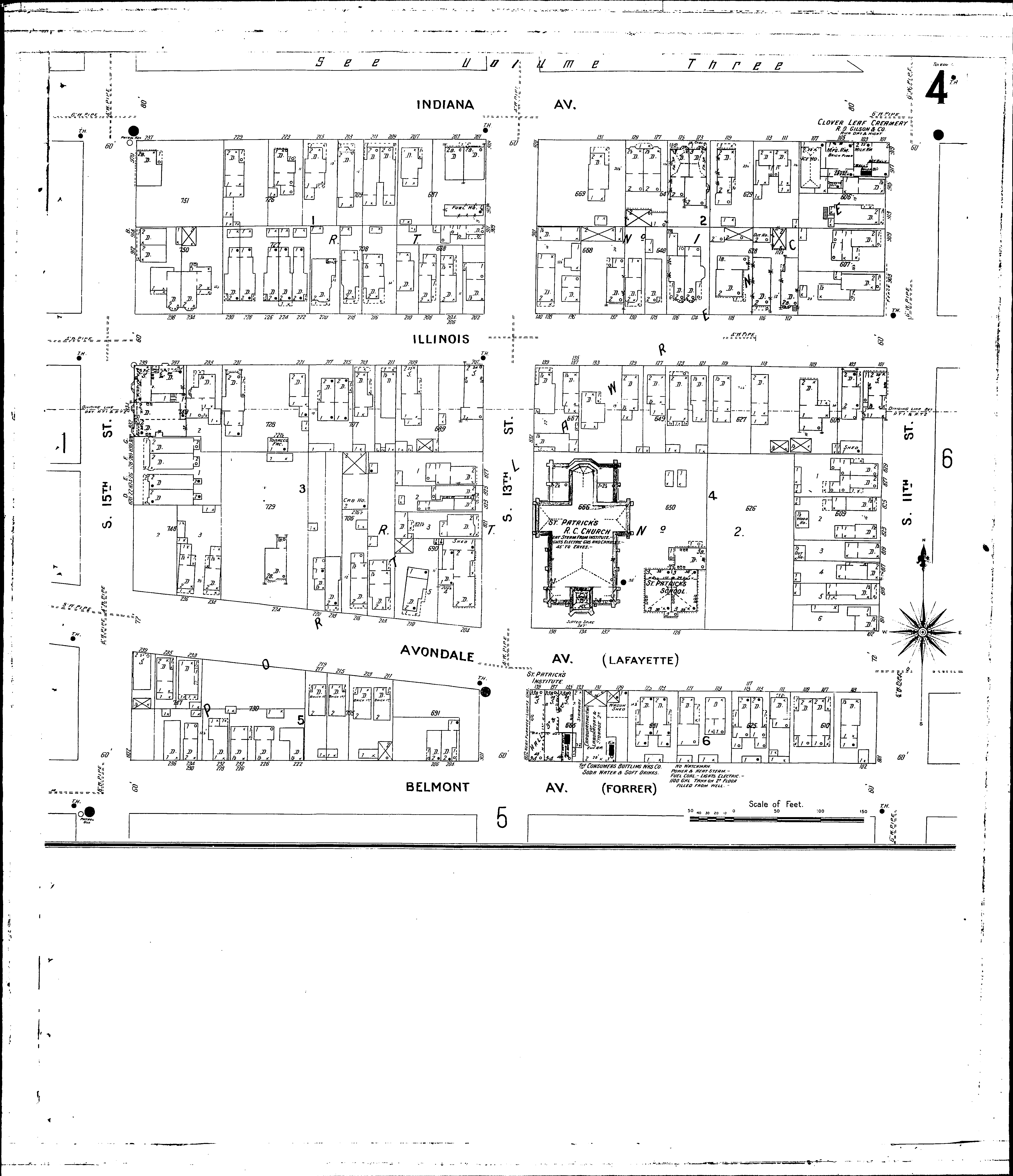
County: Lucas Co.
City: Toledo
Date: 1904-1921 vol. 1, 1904
Currently viewing image: 7 of 99
Previous - Next

Current sheet label: 4
Jump to sheet label:

Print map from PDF
Download full image
Download current view

A full color archival version of this map is available from the Kent State University Institutional Repository.

Locations:
Clover Leaf Creamery
Consumers Bottling Works
Gilson, R. D., & Co., Creamery
St. Patricks Catholic Church, &c

Streets:
Avondale Ave [100-245]
Belmont Ave [100-242]
Eleventh, S [801-921]
Fifteenth, S [800-920]
Illinois [100-243]
Indiana Ave [101-241]
Thirteenth, S [800-921]