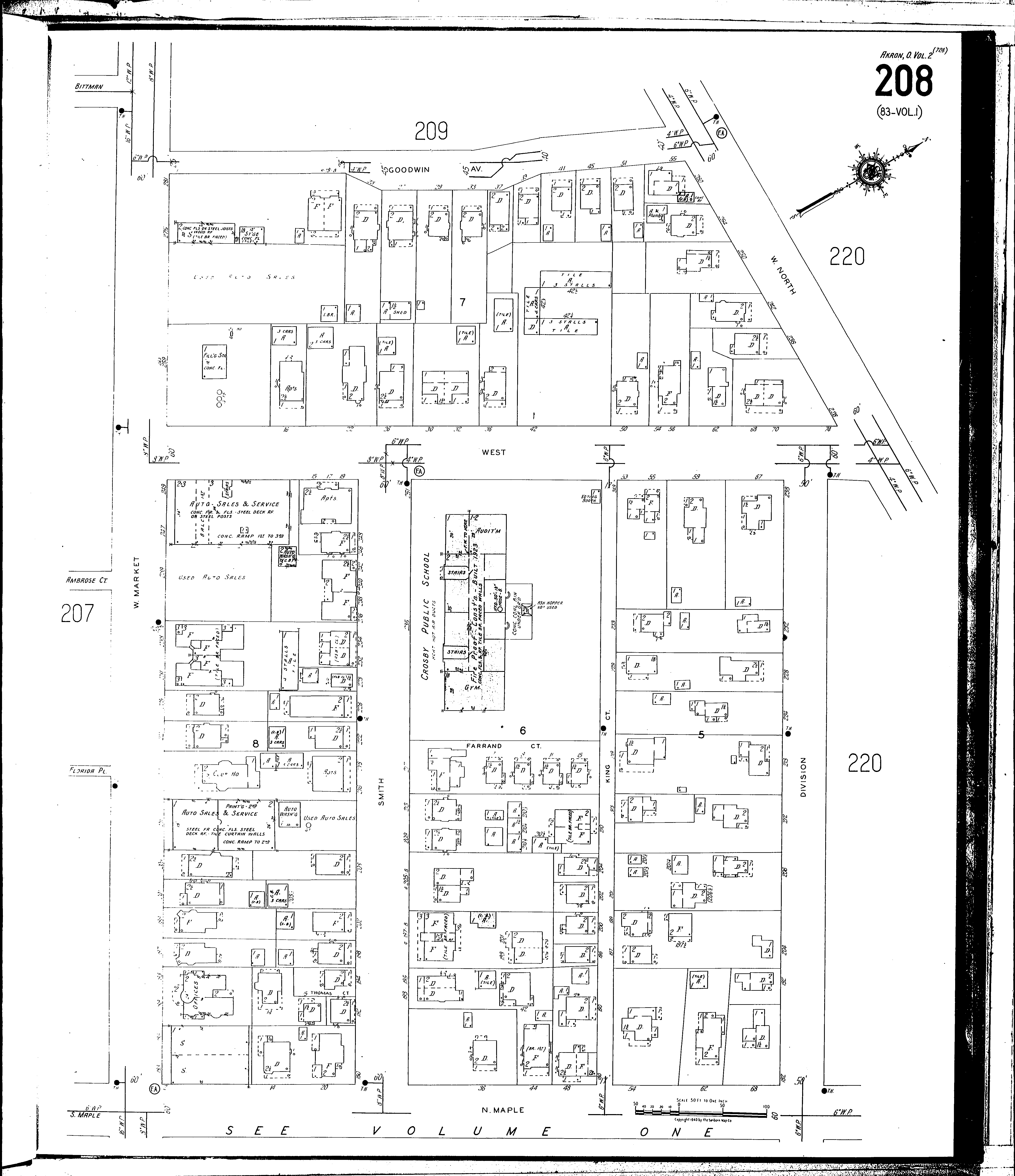
County: Summit Co.
City: Akron
Date: 1930-1940 vol. 2, 1940
Currently viewing image: 11 of 80
Previous - Next

Current sheet label: 208
Jump to sheet label:

Print map from PDF
Download full image
Download current view

Locations:
Crosby Public School

Streets:
Division [182-238]
Farrand Court
Goodwin Ave [1-59]
King Court [180-249]
Maple, N [2-68]
Market, W [183-289]
North, W [226-260]
Smith [180-251]
Thomas Court
West [1-78]